Prodej bytu 4+kk s terasou, lodžií a garáží, cca 158m2, OV, ul. Voskovcova 1130/34, P5 - Barrandov (Rezervováno)
Praha 5 - Voskovcova

Popis

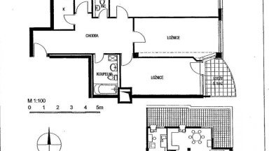
Nabízíme exkluzivně k prodeji velkorysý a do detailu promyšlený byt 4+kk o obytné ploše 114,6 m2 s terasou +38,7 m2 a lodžií +5,1 m2, umístěný v 5. nadzemním podlaží oblíbeného rezidenčního komplexu Kaskády II, ul. Voskovcova, Praha 5 - Barrandov.
Tento byt zaujme svým prostorem, soukromím i atmosférou - tři neprůchozí ložnice, obývací pokoj s jídelnou a kuchyní se vstupem na terasu s pergolou a posezením. Byt je ideální pro rodinné bydlení, kombinaci práce z domova i společné chvíle s přáteli.

Hlavní přednosti
- 114,6 m2 obytné plochy + terasa 38,7 m2 + lodžie 5,1 m2
- tři neprůchozí ložnice ideální pro rodinu, studenty či home office
- prostorná předsíň s úložným prostorem na míru
- obývací pokoj s kuchyňským koutem a jídelnou a přímým vstupem na terasu
- komora/šatna, koupelna s vanou a WC + samostatné WC
- bezpečný rezidenční dům kamerový systém, vstup na čip, ostraha
- soukromá garáž pro 2 vozy v 1. podzemním podlaží
- výborná dopravní dostupnost MHD (tramvaj, autobus) i autem

Dispozice
- prostorná vstupní předsíň s úložným prostorem
- hlavní ložnice se vstupem na terasu
- dva dětské pokoje, z jednoho přímý vstup na lodžii
- obývací pokoj propojený s kuchyňským koutem a jídelnou s výhledem i vstupem na terasu
- komora/šatna v předsíni
- koupelna s vanou a WC, dále samostatné WC

Vybavení a standard
- kuchyňská linka na míru včetně spotřebičů: myčka, trouba, sklokeramická deska, digestoř, lednice a spížní skříň
- nábytek na míru kvalitní materiály
- podlahy: plovoucí podlahy / dlažba / koberce
- terasa s pergolou a venkovním posezením
- úložné prostory řešené prakticky v celém bytě
- lokalita klid, zeleň i město na dosah

Rezidenční komplex Kaskády II patří mezi nejoblíbenější části Prahy 5 Barrandov, díky jedinečné kombinaci kvalitního bydlení, klidu, zeleně a městské infrastruktury.
Na dosah je Prokopské údolí nádherná přírodní rezervace ideální pro procházky, běh i cyklistiku.
V blízkosti najdete tramvajovou i autobusovou zastávku, nově otevřený Kaufland, školy, školky, restaurace, wellness centrum i sportovní areály.
Autem se během pár minut napojíte na Smíchov, Strakonickou nebo Jihozápadní město.

PENB třída C

Uvedené informace mají pouze informativní charakter a mohou se v průběhu inzerce změnit, nezavazují realitní kancelář ani prodávajícího k uzavření jakýchkoliv smluv a nemají předsmluvní charakter.
Prodávající si vyhrazuje právo prodat nemovitost nejvýhodnější nabídce dle jím zvolených kritérií.
Číslo nabídky
N34741015
Adresa
Praha 5, Voskovcova
Druh stavby
Skeletová
Celková plocha
114 m2
Užitná plocha
158 m2
Stav objektu
Velmi dobrý
Číslo podlaží
5
Počet podlaží pod zemí
1
Vlastnictví
Osobní
Terasa
39 m2
K dispozici od
01.11.2025
Pavlína Rejtharová
Ing. Pavlína Rejtharová
zobrazit velkou mapu