Prodej stavebního pozemku 982 m2 s rozestavěným RD v obci Veliká Ves, Praha východ (Prodáno)
Veliká Ves - Slunečná

Popis

Nabízíme exkluzivně k prodeji stavební pozemek o celkové výměře 982 m2, včetně rozestavěného rodinného domu 5+kk. Jedná se o jeden z posledních stavebních pozemků, které je možné v současnosti v této lokalitě koupit.
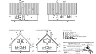
Dispozice rozestavěného domu je 5+kk ve dvou nadzemních podlažích (plnohodnotné podkroví), půdorys 11,65 x 7,90 m, sedlová střecha, zastavěná plocha 92,04 m2, užitná plocha 130,49 m2. Dům se prodává v současném stavu rozestavěnosti, což představuje přípojky vody a kanalizace připojené do domu. Elektřina je s možností okamžitého připojení do domu.
Hotová je základová deska včetně izolací a cca do 1 metru výšky vystavěné venkovní stěny.

Prodej včetně projektové dokumentace. Není nutné absolvovat zdlouhavé administrativní procesy stavebního povolení a souvisejících úřednických maratonů. Stačí jen dokončit uživatelsky atraktivní domek v zajímavé lokalitě.

Zájemce neplatí provizi.

RK Obec Veliká Ves se nachází v okrese Praha-východ, kraj Středočeský. Rozkládá se asi devatenáct kilometrů severně od centra Prahy a osmnáct kilometrů západně od města Brandýs nad Labem-Stará Boleslav. Nejstarší záznamy o obci jsou z poloviny 13. století. Obec patřila dříve do kraje kouřimského. Vít, děkan pražský, vystavěl roku 1261 ve Veliké Vsi na vlastní náklady kostel sv. Vavřince s věží. V květnu obec oslavila 750 let svého vzniku. V současné době zde trvale žije 289 obyvatel.

Majitel si vyhrazuje právo vybrat kupujícího na základě jím zvolených kritérií.
Doporučujeme prohlídku.
Číslo nabídky
N2273474
Adresa
Veliká Ves, Slunečná
zobrazit velkou mapu