Prodej stavebního pozemku, OV, 1518 m2, Žacléř (Bobr)
Žacléř

5 540 700 Kč

Popis

Nabízíme k prodeji záměr výstavby novostavby rodinného domu v klidné obci Žacléř-Bobr, situovaný na souboru pozemků v katastrálním území Bobr v podhůří Krkonoš.

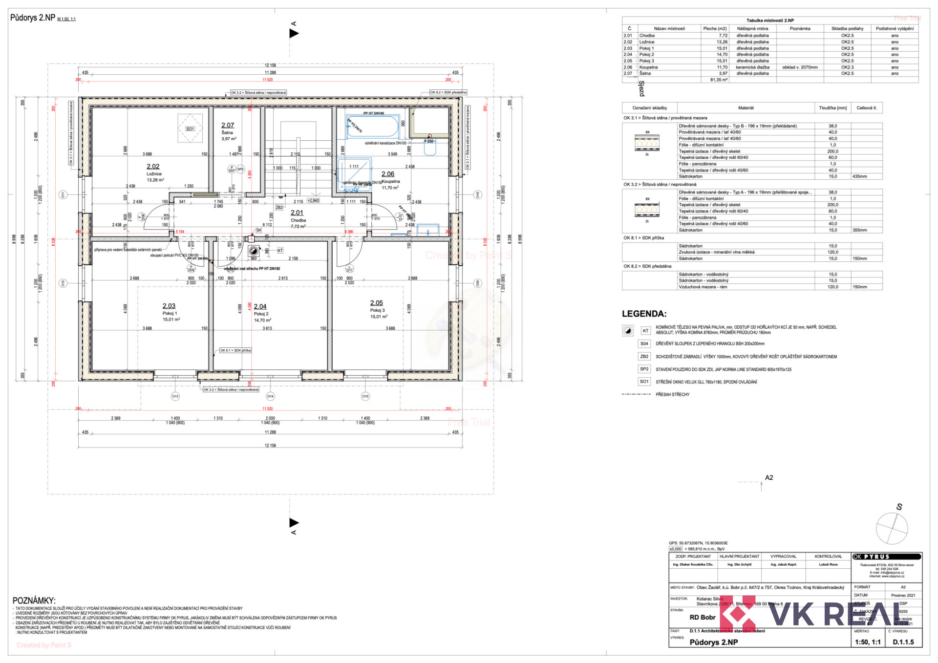
Jedná se o samostatně stojící rodinný dům určený k trvalému bydlení, s jednou bytovou jednotkou a napojením na inženýrské sítě. Projekt je navržen s důrazem na komfortní rodinné bydlení, funkční dispozici a dostatek soukromí.
Celková výměra pozemku je 1518 m2.

Parametry rodinného domu:

Zastavěná plocha RD: 146,91 m²
Užitná plocha: 169,48 m²
Obestavěný prostor: 905,6 m³
Výška hřebene nad upraveným terénem: 8,76 m

Ideální příležitost pro realizaci moderního rodinného bydlení v klidné lokalitě s dostatkem prostoru a příjemným venkovským charakterem. Vhodné pro klienty, kteří hledají novostavbu s velkým pozemkem a jasně definovaným projektem. Velkou výhodou je i budoucí (předpoklad 2028) blízkost dálnice D11.

Uvedené informace mají pouze informativní charakter a mohou se v průběhu inzerce změnit, nezavazují realitní kancelář ani prodávajícího k uzavření jakýchkoliv smluv a nemají předsmluvní charakter.

Prodávající si vyhrazuje právo vybrat kupujícího na základě jím zvolených kritérií.

Najdete nás od pondělí do pátku na adrese Bělohorská 238/85 Praha 6 - Břevnov.


Číslo nabídky
N34741061
Adresa
Žacléř
Druh pozemku
pro bydlení
Celková plocha
1518 m2
Petr Kula
Mgr. Petr Kula
Domluvit prohlídku
zobrazit velkou mapu